
ÒÆ¶¯Ê½Åç·Û¾«Á¶³ýÆø»ú»ù±¾Çé¿öÈçÏ£º
Ò»¡¢»ú¼ÜÖ÷Ìå²ÄÁÏ
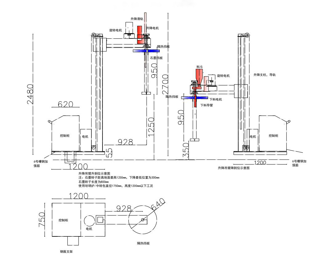
ÒÆ¶¯»ú¼Üµ×Å̲ÉÓÃ12mmºñ¸Ö°å,³ß´ç750X1200£¬6ºÅ±ê×¼²Û¸Ö¼ÓÇ¿
Éý½µÖ§ÖùʹÓÃ120X120X5mmµÄ·½¹Ü£»»ú¼Ü¸ß¶È2400mm
µçÆ÷¹ñ¿ò¼ÜʹÓÃ3mmÌú°å¼Ó¹¤ÖÆ×÷£¬ÍâΧ°å1.5MMºñÀäѹ°åÖÆ×÷,ÅçËÜ´¦Àí£»
Éý½µÁ´ÌõÐü¹Ò30X60·½Ìú£»
Éý½µ»úÍ·³ß´ç200X200£»»úÍ·³¤¶È1000mm
»úÍ·ÒÆ¶¯ÐгÌ1200mm
Éý½µ»úÍ·»î¶¯Î»ÖÃ12mmºó¸Ö°åºÍ16mmºó¸Ö°å
µ²°åÉý½µÐг̣º300mm
3Ïî380V+NÏß ÈýоËÄÏߣ¨3X1.5+1µçÏߣ©
¶þ¡¢»ú¼ÜÖÆ×÷¹¤ÒÕ
»ú¼ÜÖ÷Ìå²ÉÓõ纸º¸½Ó¹¤ÒÕΪÖ÷¡£»ú¼ÜÓëÖ§Öù£¬µçÆ÷¹ñ¿ò¼Ü£¬Éý½µÁ´Ðü¹Ò»ú¹¹¡¢»úÍ·»î¶¯°å¶¼ÊǺ¸½Ó£¬È»ºó´òÄ¥Å׹⡣
»úÍ··â°å£¬µçÆ÷¹ñ·â°å£¬»úÍ·Óë»úÍ·»î¶¯»ú¹¹ÒÔÂÝ˨¹Ì¶¨ÎªÖ÷£¬¸÷ÖÖµç»ú¡¢µçÆ÷Ò»ÂÝ˨¹Ì¶¨ÎªÖ÷¡£
Èý¡¢Éý½µ»ú¹¹
²ÉÓÃË«Á´Ìõ£¬µ¼¹ì»ú¹¹Òƶ¯£¬ÎÐÂÖ¼õËÙ»ú£¬¶¯Á¦ÎªÉ²³µµç»ú
ËÄ¡¢±íÃæ´¦Àí
»ú¼ÜÖ÷Ìå¡¢µçÆ÷¹ñ¿ò¼Ü±íÃæ³ýÐâºó£¬×ö·ÀÐâ´¦ÀíÔÙ×öÁ½´ÎÅçÆá´¦Àí¡£
Îå¡¢Ö÷ÒªµçÆ÷ÅäÖòÎÊý¡¢³§¼Ò
| ÐͺŠ| ¶¨ÖÆ | ±¸×¢ |
| ¿ØÖÆ·½Ê½ | PLC | |
| ´¥ÃþÆÁ | À¥ÂØÍ¨Ì© | 7´ç´¥ÃþÆÁ |
| ½Ó´¥Æ÷£¬¼ÌµçÆ÷ | ÕýÌ© | |
| Ö÷Öáµ÷ËÙ±äÆµÆ÷ | ¿ÆÀÊ | |
| »úÍ·Éý½µÐÎʽ | ˫ֱÏßµ¼¹ì | HGW30CA |
| Éý½µ·½Ê½ | Á´ÌõÉý½µ | Ë«Á½ÌõÁ´Ìõ |
| ת×ÓÉý½µÐÐ³Ì | 1500ºÁÃ× | ´ø800MM³¤Ê¯Ä«×ª×Ó |
| Éý½µµç»ú¹¦ÂÊ | 3Ïà380V1.5KW | ÎÐÂÖ¼õËÙ»ú£¬µÂ¶«É²³µµç»ú |
| Ðýתµç»ú | 750W | |
| תËÙ | 0--600ת/·ÖÖÓ | ±äƵ¿ØÖÆ |
| ±Û³¤ | 1000ºÁÃ× | ÊÊÓïÌåÖ±¾¶¡Ü1800ºÁÃ× |
| ÒÆ¶¯·½Ê½ | È˹¤Íƶ¯ | |
| ÆøÌå | ë²Æø¡¢µªÆøµÈ | |
| Á÷Á¿µ÷½Ú·½Ê½ | È˹¤ | ÓàÒ¦Òø»·²£Á§×ª×ÓÁ÷Á¿ÒÇÏÔʾ |
| ³ýÆøµ÷½Ú·¶Î§10---30L/min£¬ | ||
| ¾«Á¶µ÷½Ú·¶Î§10---40L/min£¬ | ||
| ´¢·Û¹ÞÈÝÁ¿ | 8¹«½ï | ²ÄÖʲ»Ðâ¸Ö |
| ËÍÁϵç»ú | 220V300W | °ÂÆæÁ¦µ÷ËÙµç»ú |
| ËÍÁϵç»úµ÷ËÙ·½Ê½ | µ÷ËÙÆ÷ | |
| ËÍÁÏËÙ¶È | 0g-800g/·ÖÖÓ | ÊýÁ¿Óɵç»úתËٺ͸øÁÏʱ¼ä¾ö¶¨ |
| ËÍÁÏ·½Ê½ | ÂݸËËÍÁÏ | |
| ת×Ó²ÄÁÏ | ʯī | ¿¹Ñõ»¯´¦Àí |
| ת×ӳߴç | ³¤800mmÖ±¾¶80mm | Á´½ÓÂÝÎÆT40X6³¤100mm |
| תÂֳߴç | Ö±¾¶200 | ¿¹Ñõ»¯´¦Àí |
| תÂÖ²ÄÁÏ | ʯī | |
| µ²°åÉý½µµç»ú | 3Ïà380V 300W | °ÂÆæÁ¦µç»ú |
| Ö÷ÖáתËÙ·¶Î§ | СÓÚ600ת/·ÖÖÓ | ±äƵµ÷½Ú |
| תÂÖÌø¶¯Îó²î | ¡Ü3ºÁÃ× | £¨300ת/·ÖÖÓ£© |
| µ²°å²ÄÁÏ | ʯī | 500X25X130¿¹Ñõ»¯´¦Àí |
| ·ÀÂÁµ²°å | ¹øÂ¯¸Ö°å | |
| »úÍ·ÒÆ¶¯Ïß | ʹÓÃÂÁÖÊÍÏÁ´²¼Öà | |
| Õû»úÖØÁ¿ | 650¹«½ï | |
| °ü×°·½Ê½ | ±¡Ä¤°ü×° |
ÏÖ³¡×é×°Íê±Ï |
Áù¡¢Á÷³Ì¹¦ÄÜ
1¡¢ÊÖ¶¯Ä£Ê½
ÔÚÊÖ¶¯Ä£Ê½Ï¿ÉÒÔµ¥¶ÀʵÏÖ£º
»úÍ·ÉÏÉý¡¢Ï½µ¹¦ÄÜ£» µ²°åÉÏÉý¡¢Ï½µ¹¦ÄÜ£»
¾«Á¶¿ª¹Ø£»¸øÁÏ¿ª¹Ø£» ³ýÆø¿ª¹Ø£»Ðýת¿ª¹Ø¡£
ÿ¸ö¶¯×÷¿ÉÒÔµ¥¶À²Ù×÷£¬ÊµÏÖµ÷ÕûÒªÇó¡£
ÿ¸ö¶¯×÷Óлúе°´Å¥µ¥¶À²Ù×÷¡£
×¢Ò⣺±¾»ú²»¼Óʯīµ²°å£¬ÒÔÃâÓ°Ïì½Á°è¹¦ÄÜ
2¡¢×Ô¶¯Ä£Ê½
ÔÚ×Ô¶¯Ä£Ê½ÏÂÁ÷³Ì£º
°´ÉÏͼµ÷Õû¸÷ÖÖÑÓʱºó£¬»úÍ·ÉÏÉýµ½¶¥µã£¬°´ÏÂ×Ô¶¯Æô¶¯°´Å¥£¬¿ªÊ¼¸÷¸ö³ÌÐò¡£
»úͷϽµ---¾«Á¶·§¿ªÆô---¾«Á¶ÐÐ³ÌÆô¶¯---ʯīת×ÓÐýת£¨Ëٶȿɵ÷£©---¹ÌÌå¿ÅÁ£¿ªÊ¼ÏÂÁÏ£¨Ëٶȿɵ÷£©---¾«Á¶Ê±¼äµ½¡ª¾«Á¶¼ÁÍ£Ö¹ÏÂÁÏ¡ª³ýÆø·§¿ªÆô---µ²°åϽµ---³ýÆøÊ±¼äµ½---Ðýתֹͣ---»úÍ·ÉÏÉý---µ²°åÉÏÉý---»úÍ·Éýµ½ÉÏÏÞλ---³ýÆø·§¹Ø±Õ---·äÃùÆ÷ÌáÐÑ×÷ÒµÍê³É---µÈ´ýÏ´Î×÷ÒµÖ¸Áî
Æß¡¢³ýÆøÐ§¹û¼ì²â
1¡¢¹¤×÷תËÙ300-600ת/·ÖÖÓ
2¡¢¹¤×÷ʱ¼ä5--15·ÖÖÓ
3¡¢³ýÆø¾²ÖÃ5-15·ÖÖÓ
4¡¢²ÉÓüõѹÄý¹Ì·¨£¬Õæ¿Õ¶È-0.08MPA,ʱ¼ä5·ÖÖÓ£¬½ØÃæÕë¿×¶ÈÒ»¼¶Æ·ÖÊ
5¡¢²ÉÓüõѹÄý¹Ì·¨£¬Õæ¿Õ¶È-0.08MPA,ʱ¼ä5·ÖÖÓ£¬A356.2Ãܶȼì²â£¬ÃܶÈ2.6
| Ãû³Æ | ²ÎÊý | ±¸×¢ |
| ÍâÐβÎÊý | 2400X750X2400mm | |
| ÖØÁ¿ | Ô¼650¹«½ï | |
| Éý½µµç»ú | 3Ïà380v1500w | |
| Ðýתµç»ú¹¦ÂÊ | 3Ïà380V750w | ±äƵµ÷ËÙ |
| ¸øÁϵç»ú | 2Ïà220v300w | µ÷ËÙÆ÷¿ØÖÆ |
| µ²°åÉý½µµç»ú | 3Ïà300w | |
| ÆøÌåÁ÷Á¿ | 0---50L/min | ²£Á§×ª×ÓÁ÷Á¿¼Æ |
| ³ýÆø×ªËÙ | 0---600ת/min | ¹¤×÷ËÙ¶È300--600 |
| ¸øÁÏËÙ¶È | 0---800¿Ë/min | |
| ÂÁÒº´¦ÀíÄÜÁ¦ | 300---1000KG | |
| ÊÊÓïÐÍ | ÛáÛöÖ±¾¶800mmÒÔÏ | ¯ÌåÍâ¾¶1800mmÒÔÏ |












